We use cookies

We use cookies and other tracking technologies to improve your browsing experience on our website, to show you personalized content and targeted ads, to analyze our website traffic, and to understand where our visitors are coming from. More info

 

ABSOLUTE REAL / Stavebný pozemok 818 m2, ulica Na Grbe, Devínska Nová Ves, (voda, elektrina, plyn, kanalizácia, studňa - na pozemku), dostupná optika

Street: Na Grbe
City/Town: Bratislava-Devínska Nová Ves
District: Bratislava IV
County: Bratislavský kraj
Category: Land
Type: Sale
Land type: Land for housing construction
409 900 €

Property description

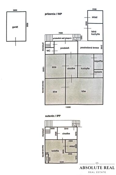
Realitná kancelária ABSOLUTE REAL v zastúpení majiteľa ponúka na predaj stavebný pozemok so starším rodinným domom o rozlohe 818  m2 v Devínskej Novej Vsi na ulici na Grbe.

 

Lokalita:

  • Priamo v srdci Devínskej Novej Vsi
  • Pokojná časť mestskej časti
  • Kompletná občianska vybavenosť (obchody, ZŠ, MŠ, reštaurácie, zdravotné stredisko, gym, kostol, MHD...)
  • Chránená oblasť Sandberg, Cyklomost Slobody, nádherná príroda, les
  • Cyklotrasy, turistické chodníky, rieka Morava
  • Prístupová cesta - asfaltová

 

 

Nehnuteľnosť:

  • Stavebný pozemok 818 m2, parcely registra C
  • Možnosť využitia bonusovej parcely 87 m2 vo vlastníctve mesta
  • Pozemok vhodný na stavbu rodinného domu
  • Veľkosť pozemku 18x46 m, rovinatý až veľmi mierny svah
  • Všetky inžinierske siete na pozemku, dostupný optický internet
  • Samostatne stojaci dom z roku 1945 so samostatnou garážou
  • 1 podlažný s pivnicou a podkrovím
  • Orientácia – Východ, Juh, Západ
  • Dispozícia:

Obývačka, spálňa, izba, chodba, kuchyňa, komora, toaleta, kúpeľňa, pivnica, terasa

  • Studňa s možnosťou využitia
  • Úrodná zem na pozemku, ovocné stromy a zelenina
  • Možnosť dodatočného parkovania
  • Elektrina 220 V, 380 V, plyn, mestská voda, kanalizácia
  • Znalecký posudok a geometrický plán k dispozícii, ÚPI – vyžiadané na stavebnom úrade
  • Osobné vlastníctvo bez tiarch, nehnuteľnosť kúpou voľná ihneď

 

 

Cena:

  • 409.900 € vrátane servisu realitnej kancelárie a advokáta

 

Realitná kancelária ABSOLUTE REAL vám pri prevode vlastníckeho práva zabezpečí:

- vypracovanie rezervačnej zmluvy

- bezplatné poradenstvo s našim hypotekárnym špecialistom v prípade potreby

- vypracovanie kúpnej zmluvy advokátom, zrýchlené katastrálne konanie do 20 dní

- vypracovanie návrhu na vklad do katastra nehnuteľností advokátom

- osobnú asistenciu pri úkonoch spojených s notárom, bankou a katastrom

- osobnú účasť pri úkonoch spojených s protokolárnym odovzdaním nehnuteľnosti

- úhradu správneho poplatku vo výške 100 EUR za návrh na vklad vlastníckeho práva do katastra nehnuteľností

Tešíme sa na obhliadku s vami!

 

PS: Potrebujete najskôr predať svoju nehnuteľnosť? Radi vám s tým pomôžeme.))

Features

Status:
active
Ownership:
personal
Land area:
818 m2
Ground type:
mostly flat
Territory:
Intravilan
Land width:
18 m
Land length:
46 m
Total area:
818 m2
Utilities:
yes
Water:
yes
Electric:
yes
Gas:
yes
Sewage:
yes
Water - On land:
yes
On land - deep well:
yes
On land - 230 V:
yes
On land - 380 V:
yes
Gas - On land:
yes
On land - sewer:
yes
Phone:
yes
Phone:
yes
Status:
active
Ownership:
personal
Land area:
818 m2
Ground type:
mostly flat
Territory:
Intravilan
Land width:
18 m
Land length:
46 m
Total area:
818 m2
Utilities:
yes
Water:
yes
Electric:
yes
Gas:
yes
Sewage:
yes
Water - On land:
yes
On land - deep well:
yes
On land - 230 V:
yes
On land - 380 V:
yes
Gas - On land:
yes
On land - sewer:
yes
Phone:
yes
Phone:
yes

Show on map

Broker

Mgr. Eduard Michalík

Mgr. Eduard Michalík

realitný maklér, konateľ

  • Slovensky
  • English
  • Česky
  • Deutsch
  • Pусский